House N
HOUSE - 2024 - Sapporo
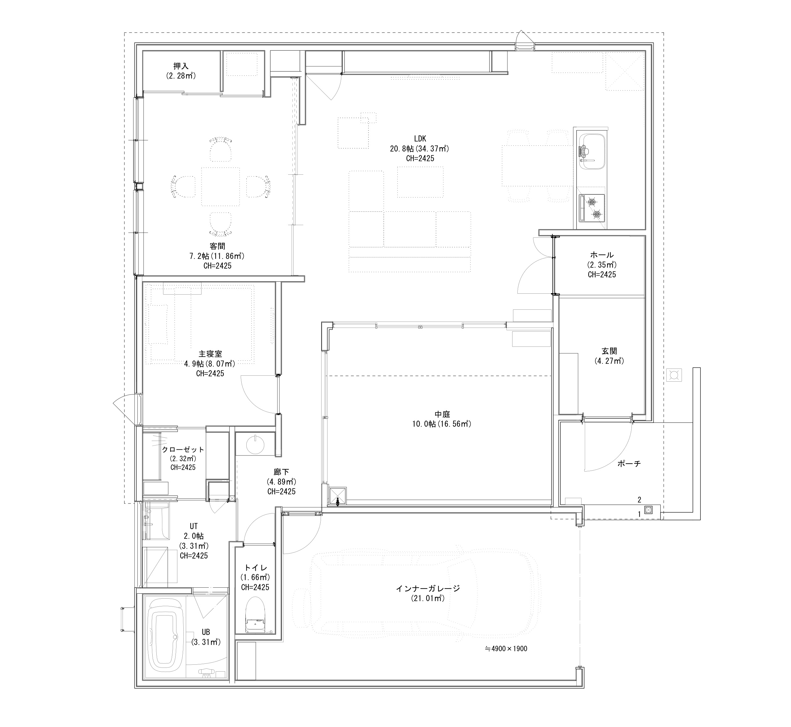
House N は、札幌という都市の中で、ひとりの暮らしと人が集まる時間を穏やかに両立させた住宅である。
「周囲の視線を避けたい」という要望から、道路側には大きな開口を設けず、中心に据えた中庭から光を取り込む構成とした。
3Dシミュレーションで四季の光や視線の抜けを検証し、採光とプライバシーのバランスを整えている。
車移動が多い生活に合わせ、車庫→手洗い→WIC→寝室へと続く効率的な帰宅動線を計画し、
身支度の際も、寝室→WIC→脱衣所→浴室へつながる迷いのない生活動線を整えた。
無理に飾らなくても日々が自然と整っていく、男性一人暮らしに寄り添う素直な骨格である。
生活の中心には、気心の知れた仲間が集まる開いた居場所を設けた。
中庭は、視界の広がりもたらすと同時に、寝室や水まわりへの静かな緩衝材として働く。
外から守られながら、内へ向かってひらく。
中庭が光と四季を届け、室内の奥へ進むほど静けさと安堵が深まっていく。
そんな、内と外のグラデーションがこの住まいには息づいている。










